 
			 
				 
	 
		Lambrate – Vendita ampio trilocale personalizzabile con balcone, cantina e box auto
In una città dinamica e vivace come Milano, trovare una casa che offra comfort e comodità all'interno di un contesto tranquillo non sembra essere facile.
La casa che proponiamo offre tutto questo e potrebbe essere la soluzione giusta per famiglie, coppie e per tutti coloro che desiderano spazi ampi e ben distribuiti.
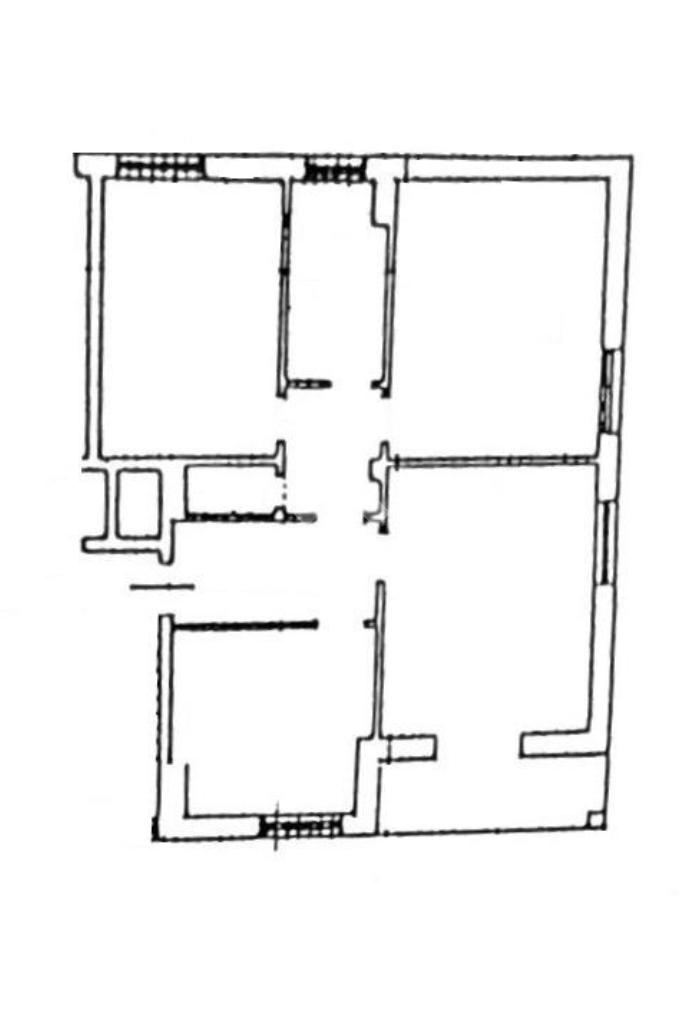
Lo stabile è ben tenuto di tipo civile degli anni '70 inserito in un quartiere residenziale; l'appartamento si trova al terzo piano con ascensore.
Il disimpegno d'ingresso divide gli ambienti della zona giorno.
Sulla destra troviamo la cucina abitabile, di pianta quadrata, luminosa e con affaccio silenzioso.
L'ampio soggiorno permette di ospitare comodamente sia la zona tv con divano e relativo arredo, sia la zona pranzo. La stanza beneficia del doppio affaccio da un lato con porta finestra e balcone, dall'altro con una finestra a doppia anta.
La parte del disimpegno che conduce verso la zona notte divide le due camere da letto, il bagno e il ripostiglio.
La camera matrimoniale ha dimensioni generose tali da permettere anche la realizzazione di una cabina armadio.
La seconda camera è anch'essa spaziosa e ospita con comodità due letti singoli.
Il bagno è dotato di tutti gli elementi, di una comoda doccia e persino di un mobile lavatoio.
Il ripostiglio è capiente ed essenziale per creare spazio ed ordine nella casa.
Il riscaldamento è centralizzato a radiatori.
La porta d'ingresso è blindata.
Completano la soluzione una cantina e un box nel cortile condominiale.
La metropolitana di Lambrate (linea verde) e la stazione ferroviaria di Lambrate sono raggiungibili a piedi o tramite i numerosi mezzi di superficie che servono il quartiere, tra cui il bus 54 che conduce in Duomo. In corrispondenza dell'abitazione abbiamo le fermate delle linee bus n° 39 - 54 - 924 e del tram n° 33 (in Viale delle Rimembranze di Lambrate) che collegano il quartiere sia con il centro città che con la periferia e la vicina Segrate. Posizione comoda per raggiungere il polo di Città Studi, Politecnico e istituti ospedalieri come il Besta. Non distante dalla ormai rinomata Via Ventura e, più in generale, dal Lambrate Design District che ospita costantemente eventi legati al settore del design, della moda, dell'arte e della cultura. Nella quotidianità, la zona offre servizi di qualsiasi natura come supermercati (Esselunga a 500 metri, Lidl a 100 metri), farmacie, banche, poste, asili, scuole, ristoranti e negozi di vario genere tra cui il superstore della Mediaworld. Inoltre, la posizione risulta comoda per raggiungere in pochi minuti la Tangenziale Est, l'Aeroporto di Linate e l'Ospedale San Raffaele.
Ti interessa visionare l'immobile?