Loft in vendita

Milano, Via Privata Giovanni Ventura - Lambrate
€ 275.000
3 locali 3 locali
70 Mq 70 Mq
2 bagni 2 bagni

Loft in vendita

Milano, Via Privata Giovanni Ventura - Lambrate

Descrizione annuncio

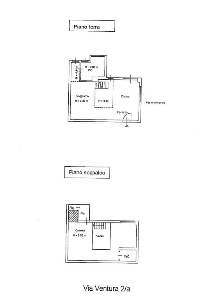
LAMBRATE – Vendita Trilocale su due livelli in Via Ventura

Nel cuore di Lambrate, vivace quartiere nella zona est di Milano, proponiamo un interessate trilocale su due livelli di 70 mq circa, ideale per chi cerca un'abitazione funzionale e ben distribuita.

Al piano terra, l'ingresso si apre su un'accogliente zona giorno, ideale per momenti di relax e convivialità. La cucina, ben integrata, permette di sfruttare al meglio lo spazio disponibile. Trova posto anche il primo bagno con vasca.

Salendo al livello superiore, si accede alla zona notte soppalcata, che garantisce privacy e comfort. Qui si trova un primo ambiente con il letto matrimoniale e cabina armadio, una seconda stanza e un secondo bagno, una comodità aggiuntiva che arricchisce l'abitazione.

Costruito nel 1950, l'appartamento conserva il fascino dell'epoca, pur essendo adatto alle esigenze contemporanee. La posizione strategica nel quartiere di Lambrate offre un facile accesso ai servizi e ai trasporti pubblici, rendendolo una scelta ideale per chi desidera vivere a Milano.

La metropolitana di Lambrate (linea verde) e l'omonima stazione ferroviaria sono raggiungibili a piedi in 5 minuti.

L'appartamento è in una zona strategica per gli spostamenti quotidiani verso il centro città grazie alla vicinanza di Piazza Bottini dove transitano innumerevoli mezzi di superficie (tram, bus e filobus) tra cui le linee 19 – 33 – 54 – 93 – 39 – 81 – 45 -53 e servita anche di notte dalla sostitutiva della metro.

La posizione risulta comoda per raggiungere in pochi minuti la Tangenziale Est, l'Aeroporto di Linate e l'Ospedale San Raffaele. Il Parco Lambro dista solo 10 minuti a piedi.

La zona in cui è collocato l'immobile sta vivendo una fase di forte sviluppo, grazie ai molteplici interventi di riqualificazione urbana e di recupero architettonico.
Adiacente a Via Ventura e, più in generale, al Lambrate Design District che ospita costantemente eventi legati al settore del design, della moda, dell'arte e della cultura.
Nella quotidianità, la zona offre molteplici servizi come la vicinanza ai mezzi pubblici, scuole, università (Città Studi e Politecnico), supermercati (Esselunga, Lidl), farmacie, ristoranti, negozi di vario genere tra cui il superstore della Mediaworld, palestre, banche e poste.

Mostra tutto

Nelle vicinanze

Trasporto pubblico Trasporto pubblico
Lambrate FS
Lambrate FS
610 m
Udine
Udine
920 m
stazione di Milano Lambrate
stazione di Milano Lambrate
430 m
stazione di Cimiano
stazione di Cimiano
1,8 Km
Rimembranze di Lambrate
Rimembranze di Lambrate
180 m
Ricariche auto elettriche Ricariche auto elettriche
MediaWorld Rubattino
540 m
A2A Pacini
580 m
PoliMi - Dipartimento di Elettronica
990 m
U2 Supermercato Milano Vallazze | EnelX
1,1 Km
EnelX EVAD Sede Enel MI Rubattino
1,2 Km
Scuole Scuole
Scuole
200 m
Libera Scuola Rudolf Steiner
220 m
Sir James Henderson British School
370 m
Istituto comprensivo Dino Buzzati
660 m
Scuola primaria Bruno Munari
710 m
Farmacia Farmacia
San Martino
270 m
Rombon
300 m
Farmacia Rubattino
570 m
Santa Chiara
580 m
Farmacia Lambrate
580 m
Ospedali Ospedali
Istituto Neurologico Carlo Besta
1,2 Km
Istituto Clinico Città Studi
1,3 Km
Istituto Nazionale dei Tumori
1,3 Km
Poliambulatorio di via Don Orione
2,0 Km
San Raffaele - Turro
2,0 Km
Supermercati Supermercati
Lidl
420 m
U2
450 m
AffamatiUSA
520 m
Il mercato verde
640 m
Esselunga di via Rubattino
750 m
Negozi Negozi
Negozi
160 m
Il forno delle delizie
290 m
Alimentari Mini Market
450 m
Panificio pasticceria Arioli
470 m
Minimarket di Novo
500 m
Bar Bar
Bar Dani
120 m
Guarany
190 m
Bar Oscar
240 m
Acli
250 m
Bar
580 m
Ristoranti Ristoranti
Koshin
10 m
Del borgo
20 m
Anna e Leo
50 m
La Cappelletta
60 m
Il calabrone 2
160 m
Mostra tutto

Caratteristiche

Rif.:
61175719
Piano:
Terra di 3 con ascensore
Totale piani:
3
Camere da letto:
2
Arredamento:
Completo
Condizionamento:
Autonomo
Mostra tutto
Prezzo Prezzo
€ 275.000
Rata mutuo Rata mutuo
€ 1.306 / mese
Spese annue Spese annue
€ 900
Proponi il tuo prezzoProponi il tuo prezzo

Classe Energetica

G
G
G
G
G
G
G
G
G
EP globale non rinnovabile:
250.22 kW h/m² anno
EP invernale del fabbricato:
EP estiva del fabbricato:
Anno di costruzione:
1950
Riscaldamento:
Autonomo
Tipo impianto:
A radiatori
Tipo alimentazione:
Metano

Ti interessa visionare l'immobile?

Fissa un appuntamento  Fissa un appuntamento

Richiedi informazioni

Clicca su Leggi per aprire l'informativa
* Questi campi sono obbligatori

Calcola il tuo mutuo

Semplice e senza impegno
Anticipo

( % )
Mutuo

( % )

pochi semplici passi

inserisci i tuoi dati
Questionario completato
Grazie per aver richiesto un appuntamento senza impegno con un nostro Consulente del Credito e Assicurativo.

Hai inserito correttamente tutti i dati necessari e a breve riceverai una e-mail con un link da convalidare per inviare i tuoi dati.
Affiliato
Studio Lambrate Rubattino Srl
Via Muzio Scevola, 6 20134 Milano (MI)

Il nostro staff


  • Riccardo Meini
    Affiliato

  • Sara Lazzara
    Collaboratrice

  • Ibtissam Rajaa
    Collaboratrice

  • Maria Grazia Scalici
    Coordinatrice
Via Muzio Scevola, 6 20134 Milano (MI)
Zona: Lambrate-Rubattino-Ortica
Mostra su mappa
Affiliato
Studio Lambrate Rubattino Srl
Via Muzio Scevola, 6 20134 Milano (MI)

2026 Tecnocasa Franchising S.p.A. - P. IVA 08365160152 - Via Monte Bianco 60/A 20089 Rozzano (MI). Ogni agenzia ha un proprio titolare ed è autonoma. Privacy policy | Policy utilizzo | Cookie policy